ARCHITEKTEN - STADTPLANER - INGENIEURE

Anschluss-
unterbringung



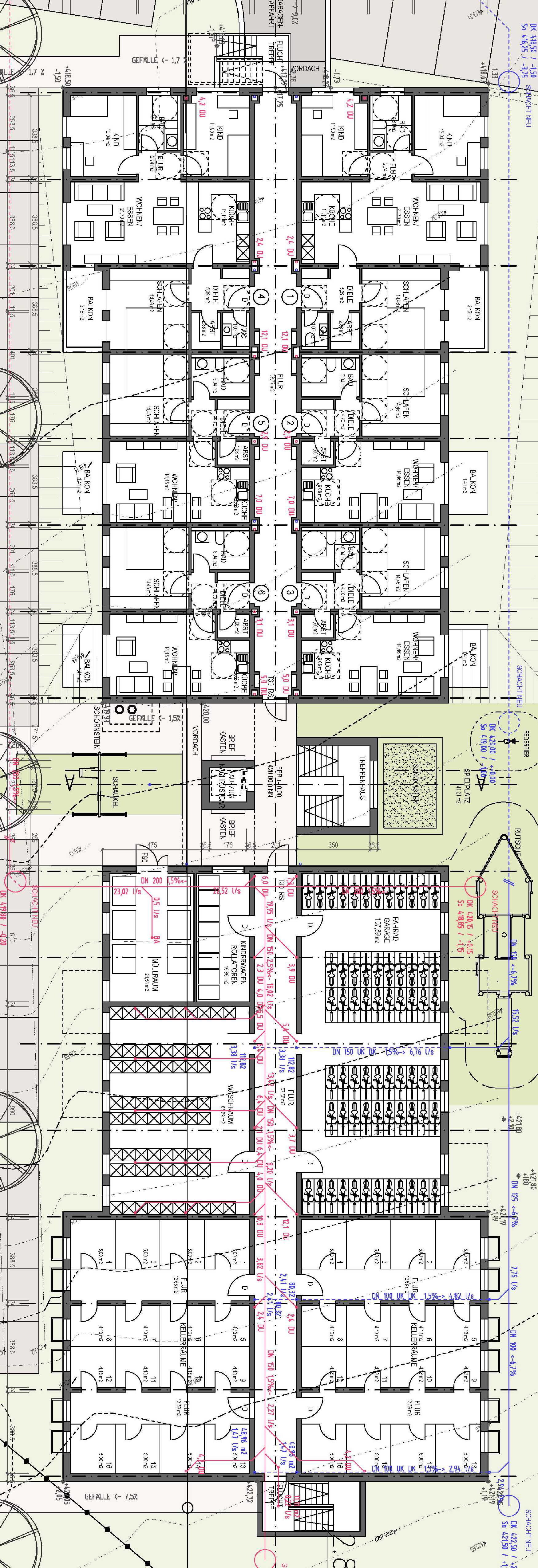
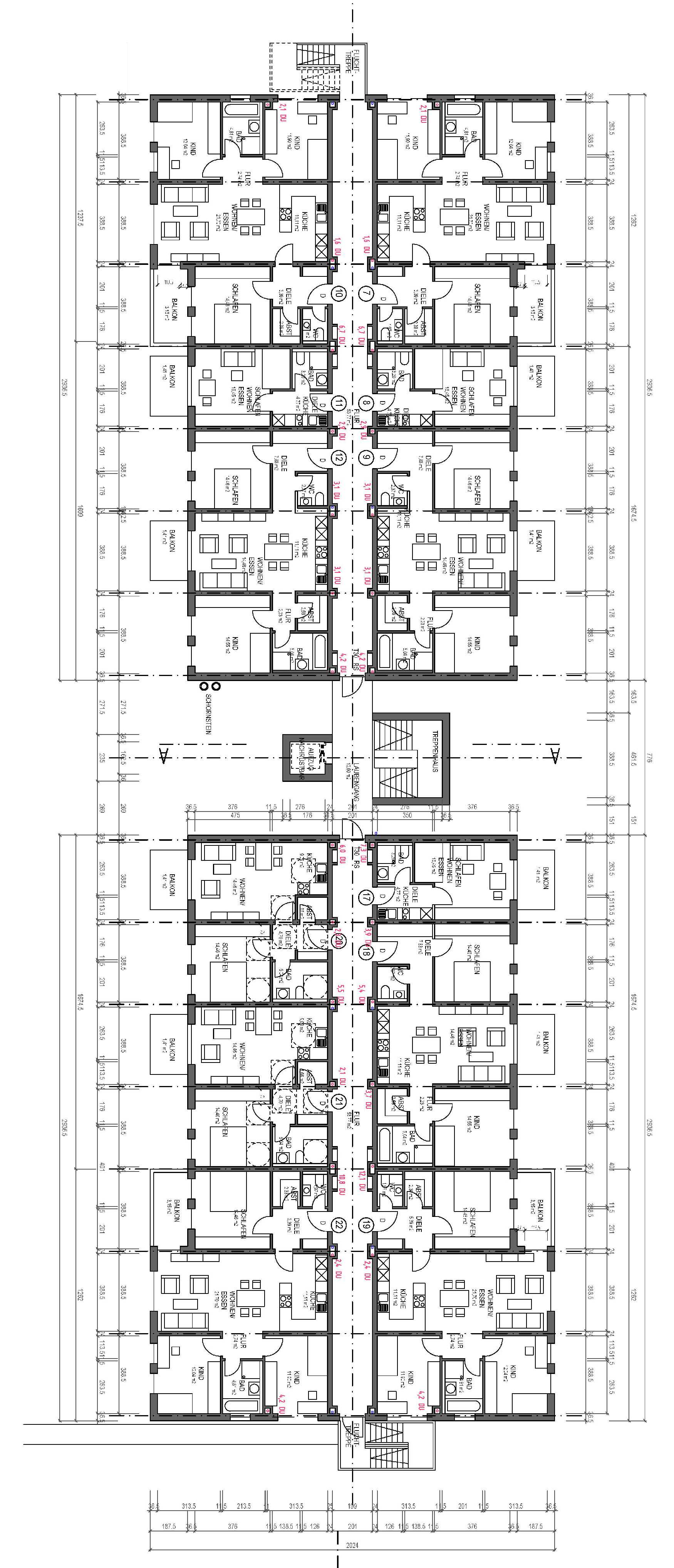
Da der Entwurf sich auch für andere Situationen wie innerstädtische Lagen eignen soll, wurde von Anfang an ein zeitgemässes Raster an der Aufteilung von Tiefgaragen orientiert. Zwei Achsefelder entsprechen nach Abzug der notwendigen Sützpfeiler drei Parkplätzen. Je nach Größe der Einheit bestehen die Wohnungen aus bis zu drei Achsfeldern. Die jeweiligen Typen der Achsfelder werden dabei entsprechend der notwendigen Wohnungsgrösse kombiniert. Die Nassräume sind immer an derselben Stelle an einem vom notwendigen Flur aus zugänglichen Steigstrang. Das Treppenhaus entspricht ebenfalls einem Achsfeld. Entsprechend des Bedarfs können dadurch die Wohnungsgrößen beliebig nebeneinander und übereinander angeordnet werden.


Wohnungsgrundrisse


Varianten Wohnungsaufteilung


Die Planung wurde für die Gemeinde Bodman-Ludwigshafen vertieft und konkretisiert. Im Erdgeschoss entstanden barrierefrei Wohnungen und die notwendigen Nebenräume wie Waschküche, Fahrradabstellplätze und Kellerräume.

Grundriss Ebene 1


Grundriss Ebene 2